Grundschulerweiterung: Bau der Dreifeldsporthalle
Die neue Dreifeldsporthalle wird aktuell auf dem Gelände des Hortes Koboldland direkt hinter der Löcknitz-Grundschule im Zentrum der Stadt gebaut. Nach der Fertigstellung soll die Halle nicht nur den Schülerinnen und Schülern der Grundschule zur Verfügung stehen, sondern kann nach Schulschluss und in den Ferien auch vom Hort sowie von Vereinen genutzt werden.
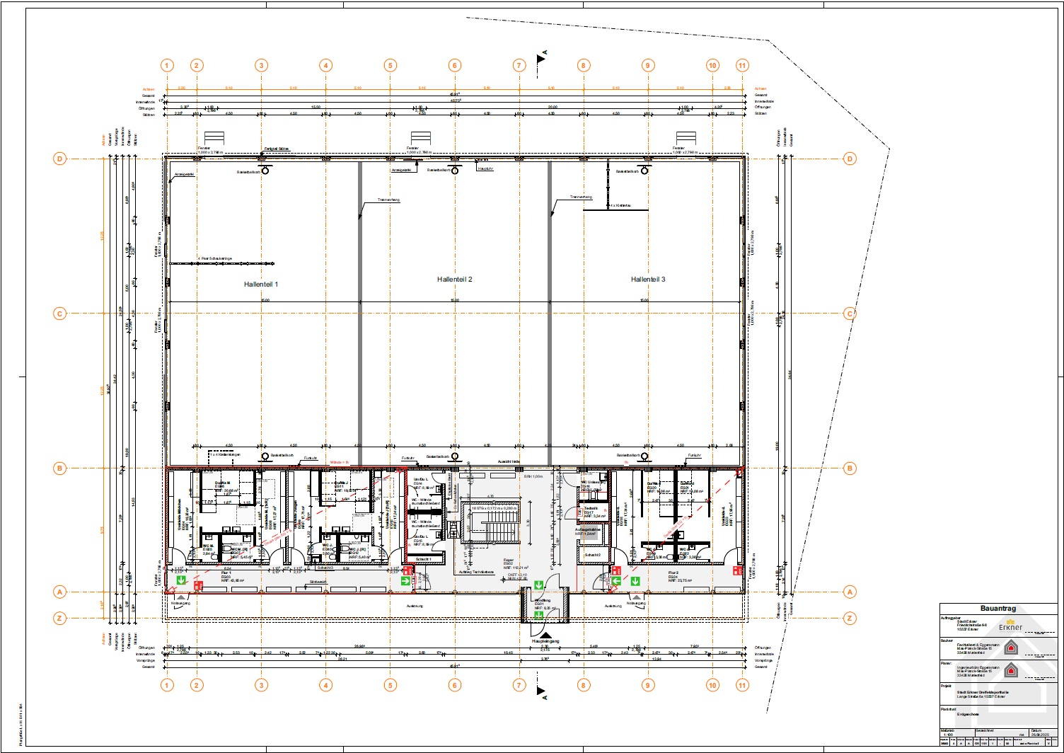
Die neue Sporthalle integriert sich trotz ihrer Größe gut in die Hanglage des Hortgrundstücks und ist entsprechend architektonisch gestaltet. Sie lässt sich in insgesamt drei Felder aufteilen, die mittels eines stabilen Vorhangs getrennt werden können. Ausgestattet ist die Dreifeldsporthalle unter anderem mit Fußballtoren, Basketballkörben, Schaukelringen, Kletterstangen und Sprossenwänden. Im Erdgeschoss befinden sich WCs, Duschen und Umkleideräume.
Grundriss


Informationen
Zeitplan
- 22. Juli 2025: Beschluss der Stadtverordnetenversammlung
- 22. September 2025: Unterzeichnung des Bauvertrags
- 1. April 2026: Erteilung der Baugenehmigung
- April / Mai 2026: Pfahlgründung und Streifenfundamente
- Mai 2026: Aufstellung Baukran
- Mai 2026 bis Juli 2026: Rohbau
- August 2026 und September 2026: Fassaden- und Dacharbeiten
- Oktober 2026 bis Februar 2027: Innenausbau
- Februar und März 2027: Inbetriebnahme, Prüfungen, Außenanalagen
- 26. März 2027: Übergabe des Gebäudes an die Stadt Erkner
Lageplan



Perspektiven



Kontakt
Stadt Erkner
Hochbau
Herr Linke
Telefon +49 3362 795-140
linke@erkner.de
Termine nach Vereinbarung
Pressemitteilungen

Spatenstich für die neue Dreifeldsporthalle










